2026
Laagam amsterdam store
architecture
design
production
eng
esp
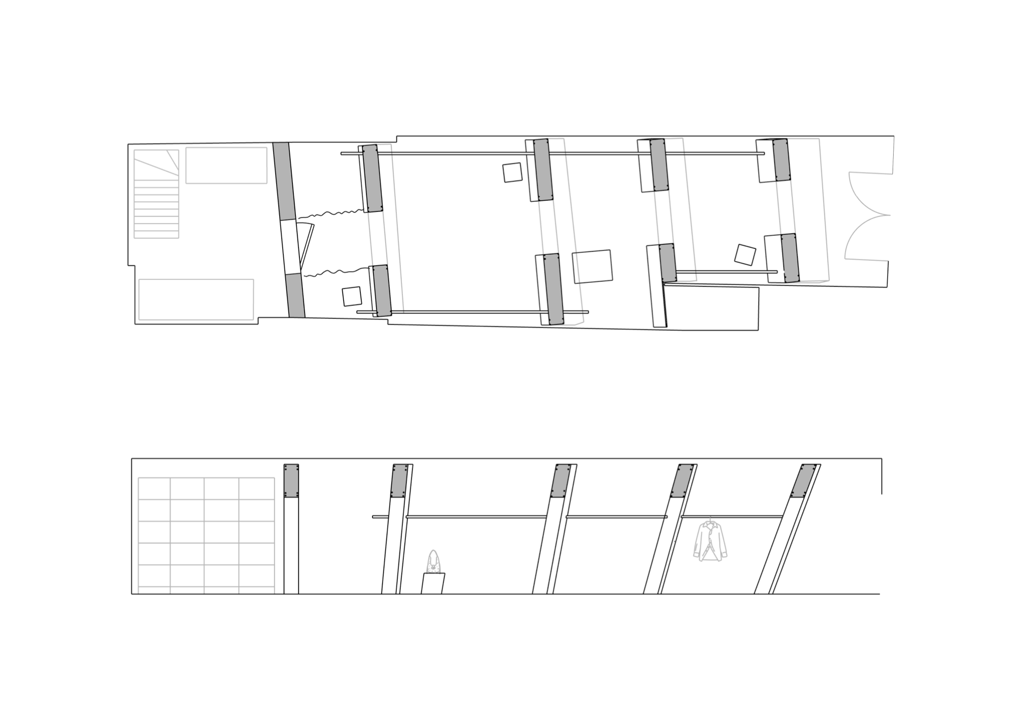
Para la primera tienda internacional de Laagam, trabajamos desde la condición del espacio (estrecho y alargado) entendiéndolo como un reto desde el que jugar a través de la sorpresa y la dislocación. El proyecto propone así un recorrido en el que la percepción se ve constantemente alterada y donde la estabilidad nunca es del todo evidente.
El punto de partida es una serie de planos y estructuras que parecen derramarse y caer unos sobre otros, como fichas de dominó o cartas de una baraja. A partir de este gesto, construimos un equilibrio inestable de planos sucesivos, generando una secuencia que se repite y se transforma a lo largo de la tienda. Cada plano tiene una inclinación diferente, siendo el último el más vertical y el primero el más inclinado, queriendo casi salirse del espacio. Estas supercicies además sonbrillantes, se convierten en lámparas o backlights verticales que envuelven el conjunto e imitan la lógica de un set fotográfico.
De manera casi casual, el proyecto encuentra además una relación sutil con la ciudad. En Ámsterdam, muchas construcciones históricas presentan ligeras inclinaciones, resultado de sus cimientos sobre pilotes de madera y sus suelos blandos. Esta condición resuena inesperadamente en el interior de la tienda, donde la inclinación deja de ser un accidente para convertirse en lenguaje con el que trabajamos en el estudio.
El punto de partida es una serie de planos y estructuras que parecen derramarse y caer unos sobre otros, como fichas de dominó o cartas de una baraja. A partir de este gesto, construimos un equilibrio inestable de planos sucesivos, generando una secuencia que se repite y se transforma a lo largo de la tienda. Cada plano tiene una inclinación diferente, siendo el último el más vertical y el primero el más inclinado, queriendo casi salirse del espacio. Estas supercicies además sonbrillantes, se convierten en lámparas o backlights verticales que envuelven el conjunto e imitan la lógica de un set fotográfico.
De manera casi casual, el proyecto encuentra además una relación sutil con la ciudad. En Ámsterdam, muchas construcciones históricas presentan ligeras inclinaciones, resultado de sus cimientos sobre pilotes de madera y sus suelos blandos. Esta condición resuena inesperadamente en el interior de la tienda, donde la inclinación deja de ser un accidente para convertirse en lenguaje con el que trabajamos en el estudio.
For Laagam’s first international store, we worked with the condition of the space—narrow and elongated—understanding it as a challenge from which to play through surprise and spatial dislocation. The project thus proposes a journey in which perception is constantly altered and stability is never entirely evident.
The starting point is a series of planes and structures that seem to spill and fall onto one another, like domino pieces or a stack of cards. From this gesture, we construct an unstable balance of successive planes, generating a sequence that repeats and transforms throughout the store. Each plane has a different inclination, with the last being the most vertical and the first the most tilted, almost as if it were trying to slip out of the space. These surfaces are also glossy, becoming lamps or vertical backlights that envelop the whole and mimic the logic of a photographic set.
Almost by chance, the project also finds a subtle relationship with the city. In Amsterdam, many historic buildings present slight inclinations as a result of their wooden pile foundations and soft ground conditions. This quality resonates unexpectedly within the interior of the store, where inclination ceases to be an accident and becomes a language we work with in the studio.
The starting point is a series of planes and structures that seem to spill and fall onto one another, like domino pieces or a stack of cards. From this gesture, we construct an unstable balance of successive planes, generating a sequence that repeats and transforms throughout the store. Each plane has a different inclination, with the last being the most vertical and the first the most tilted, almost as if it were trying to slip out of the space. These surfaces are also glossy, becoming lamps or vertical backlights that envelop the whole and mimic the logic of a photographic set.
Almost by chance, the project also finds a subtle relationship with the city. In Amsterdam, many historic buildings present slight inclinations as a result of their wooden pile foundations and soft ground conditions. This quality resonates unexpectedly within the interior of the store, where inclination ceases to be an accident and becomes a language we work with in the studio.
credits
Architecture and construction management @casantillon
Production @gerardogorris @wecreateyourspace
Photo @piercarloquecchia @dsl__studio


